*** Moderne Eigentumswohnung-energieeffizient-hoher Wohnkomfort ***

Reserviert

Beschreibung

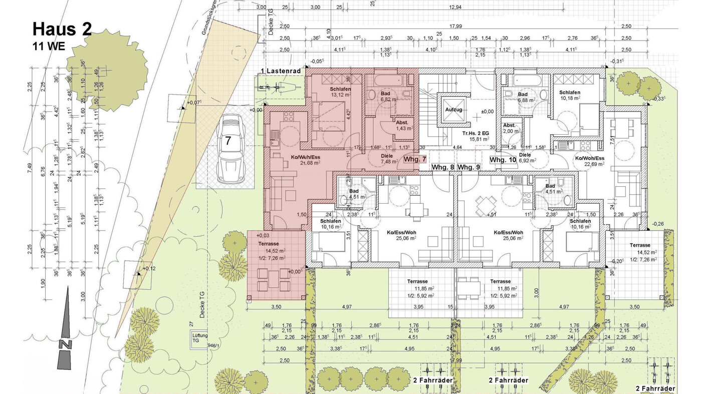
*** Haus 2 – Wohnung 7 - Moderne Eigentumswohnung in der Karlskroner Str. 27, Ingolstadt-Zuchering ***

In diesem modernen Mehrfamilienhaus entstehen 11 hochwertige Eigentumswohnungen, die durch ihren Wohnkomfort bestechen.

Für Familien, Senioren und Personen mit eingeschränkter Mobilität ist durch den Personenaufzug der barrierefreie Zugang von der Tiefgarage (TG) bis zum Dachgeschoss (DG) gegeben.

Projektbeginn 2025 - Fertigstellung 2026

Lage

Das Grundstück befindet sich in einer ruhigen und familienfreundlichen Wohngegend von Zuchering, die sich durch ihre hohe Lebensqualität auszeichnet. Die Umgebung bietet eine perfekte Mischung aus ländlichem Charme und urbaner Annehmlichkeiten.

Eine gute Anbindung an den öffentlichen Nahverkehr, der eine schnelle Erreichbarkeit der umliegenden Städte und Gemeinden ermöglicht. Diverse Supermärkte, Fachgeschäfte und Dienstleister sind in wenigen Minuten erreichbar und decken alle täglichen Bedürfnisse ab. Kindergärten, Grundschulen und weiterführende Schulen befinden sich in der Nähe, was die Lage besonders attraktiv für Familien macht. Die Umgebung bietet zahlreiche Parks, Spielplätze und Sporteinrichtungen, die zu einem aktiven Lebensstil einladen.

Karte

Ausstattung

Moderne Bauweise mit innovativem Energiekonzept

Die energieeffiziente Bauweise mit innovativem Energiekonzept, Beheizung mit Luft-Wasser-Wärmepumpe und dezentralen Lüftungsanlagen in den Wohneinheiten, gewährleistet ein angenehmes Wohnklima und reduziert Ihre Energiekosten.

+ Fußbodenheizung, Einzelraumtemperaturregelung mit Raumthermostat
+ Fenster mit 3-fach Verglasung, elektrische Rollläden
+ Hochwertige Sanitärausstattung
+ Individuelle Auswahl der Bodenbeläge

Zeitgemäßes Design, hochwertige Materialien und eine durchdachte Raumaufteilung vereinen Funktionalität und Ästhetik.

Sonstige Angaben

Weitere Unterlagen, wie Wohnflächenberechnungen, Grundrisse, Ansichten, Schnittzeichnung und Visualisierungen liegen vor und können Ihnen auf Ihre Anfrage übermittelt werden.

Für weitere Informationen oder zur Vereinbarung eines Besichtigungstermins stehen wir Ihnen jederzeit gerne zur Verfügung.

Objektdaten

Wohnung - Erdgeschoss
Vermarktungsart
Kauf
PLZ
85051
Ort
Ingolstadt / Zuchering
Straße
Karlskroner Straße
Hausnummer
27a
ImmoNr
BI-25-05-H2-W07-EG
Wohnfläche
ca. 57 m²
Nutzfläche
ca. 132 m²
Anzahl Zimmer
2
Kaufpreis
342.000,00 €
Anzahl Badezimmer
1
Baujahr
2025
Endenergiebedarf
15,2 kWh/(m²a)
Energieausweis
Bedarfsausweis
Energieausweis gültig bis
24.06.2034
Energieeffizienzklasse
A+
Außen-Provision
Keine Provisionskosten für den Käufer
wesentlicher Energieträger
Luft/Wasser Wärmepumpe

Ansprechpartner

Herr Wolfgang Blaimer

Blaimer Immobilien GmbH

+49 160 4497 040

info@blaimer-immobilien.de

Dokumente

PDF-Exposé

Kontakt aufnehmen

Deine Anfrage zu der Immobilie „*** Moderne Eigentumswohnung-energieeffizient-hoher Wohnkomfort ***“ (BI-25-05-H2-W07-EG)

Vorname*:
Name*:
Telefonnummern:
E-Mail*:
Ihre Nachricht*:

Hiermit bestätige ich die Verarbeitung meiner Kontaktdaten für die Kontaktaufnahme

Seiten: 1