Moderne Büroflächen

Beschreibung

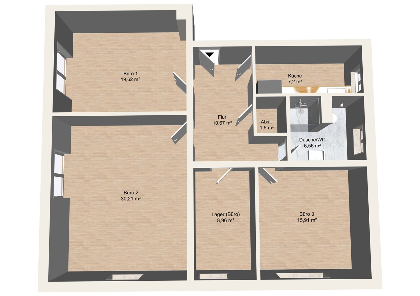
Büroeinheit 06 - 1. OG - Gewerbefläche: ca. 101 m²

Bürogebäude - Massivbau, Baujahr: 1992
Massivbau (unterkellert), Ziegelwände mit Massivdecken, Stahlbetontreppen mit Steinbelag, normaler Zustand, Gaszentralheizung, Isolierglasfenster, Satteldach mit Pfannendeckung
Ausstattung: Laminat- bzw. Fliesenfußböden,

Das Objekt wird im Mai und Juni 2026 vollständig modernisiert und ist ab dem 01.07.2026 für Sie verfügbar.

Lage

Das Objekt liegt 10 km nördlich von Ingolstadt im Gewerbegebiet Stammham und kann sehr gut angefahren werden. Die Verkehrsanbindung zur A9 Nürnberg-München ist ca. 7 Fahrminuten entfernt. Die Busverbindungen sind gut ausgebaut. Stammham gehört zum Landkreis Eichstätt und liegt im Regierungsbezirk Oberbayern.

Ausstattung

Büroeinheit, gehobener Ausstattungsstandard - Modernisierung 05-06.2026

Objektdaten

Büro/Praxen - Bürofläche
Vermarktungsart
Miete
PLZ
85134
Ort
Stammham
Straße
Stadtweg
Hausnummer
8
ImmoNr
BI_26-06-BG-B06-1.OG
Anzahl Zimmer
4
Baujahr
1992
Außen-Provision
Keine Provisionskosten für den Käufer
Kaution
4.050,00 €
wesentlicher Energieträger
Erdgas leicht

Ansprechpartner

Herr Wolfgang Blaimer

Blaimer Immobilien GmbH

+49 160 4497 040

info@blaimer-immobilien.de

Dokumente

PDF-Exposé

Kontakt aufnehmen

Deine Anfrage zu der Immobilie „Moderne Büroflächen“ (BI_26-06-BG-B06-1.OG)

Vorname*:
Name*:
Telefonnummern:
E-Mail*:
Ihre Nachricht*:

Hiermit bestätige ich die Verarbeitung meiner Kontaktdaten für die Kontaktaufnahme

Seiten: 1